top of page
Edgware Road, Paddington Green, London
Type: Apartment
SALE
FEATURES
• Located in one of central London's most prestigious areas
• Just a minute’s walk from Edgware Road station
• Large bedroom with private balcony
• Estimated completion Q2 2026
• Residents’ cinema, pool, gym & spa
• Private landscaped courtyard gardens
• 24-hour concierge service
• Peppercorn ground rent
• 999 years lease from 2022
• Rental estimate £3,500 per calendar month
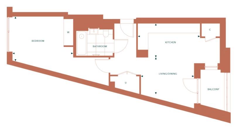
Nestled in one of London’s most prestigious locations, this exquisite new build apartment on Edgware Road offers a unique blend of modern living and urban convenience. Spanning an impressive 643 square feet, the property features a generous reception room that seamlessly flows into a private balcony, ideal for enjoying the fresh air and city views. The large bedroom is designed for comfort, ensuring a peaceful retreat at the end of the day, while the contemporary bathroom is fitted with high-quality fixtures.
Anticipated for completion in the second quarter of 2026, this apartment is part of a contemporary development that boasts an array of exceptional facilities. Residents will have access to a state-of-the-art cinema, a refreshing swimming pool, and a fully equipped gym, ensuring that leisure and fitness are at your fingertips. Additionally, the property benefits from a 24-hour concierge service, providing peace of mind and convenience for all residents.
Residents will also appreciate the private landscaped courtyard gardens, which offer a serene escape from the bustling city life. This outdoor space is perfect for enjoying a moment of tranquillity or socialising with friends and neighbours.
Located just a minute's walk from Edgware Road station, this apartment places you within easy reach of a plethora of shops, restaurants, and transport links, making it an ideal base for exploring the vibrant city of London.
This apartment is not only a stylish home but also a fantastic rental opportunity, with an estimated rental value of £3,500 per calendar month. With a 999-year lease term and peppercorn ground rent, this apartment represents a long-term investment in one of the most sought-after areas of London. Whether you are looking to buy or rent, this property is a rare find in a prime location, offering both luxury and practicality in the heart of London.
bottom of page







