top of page
Swepstone Close, Lower Earley, Reading
Type: House - Detached
SALE
FEATURES
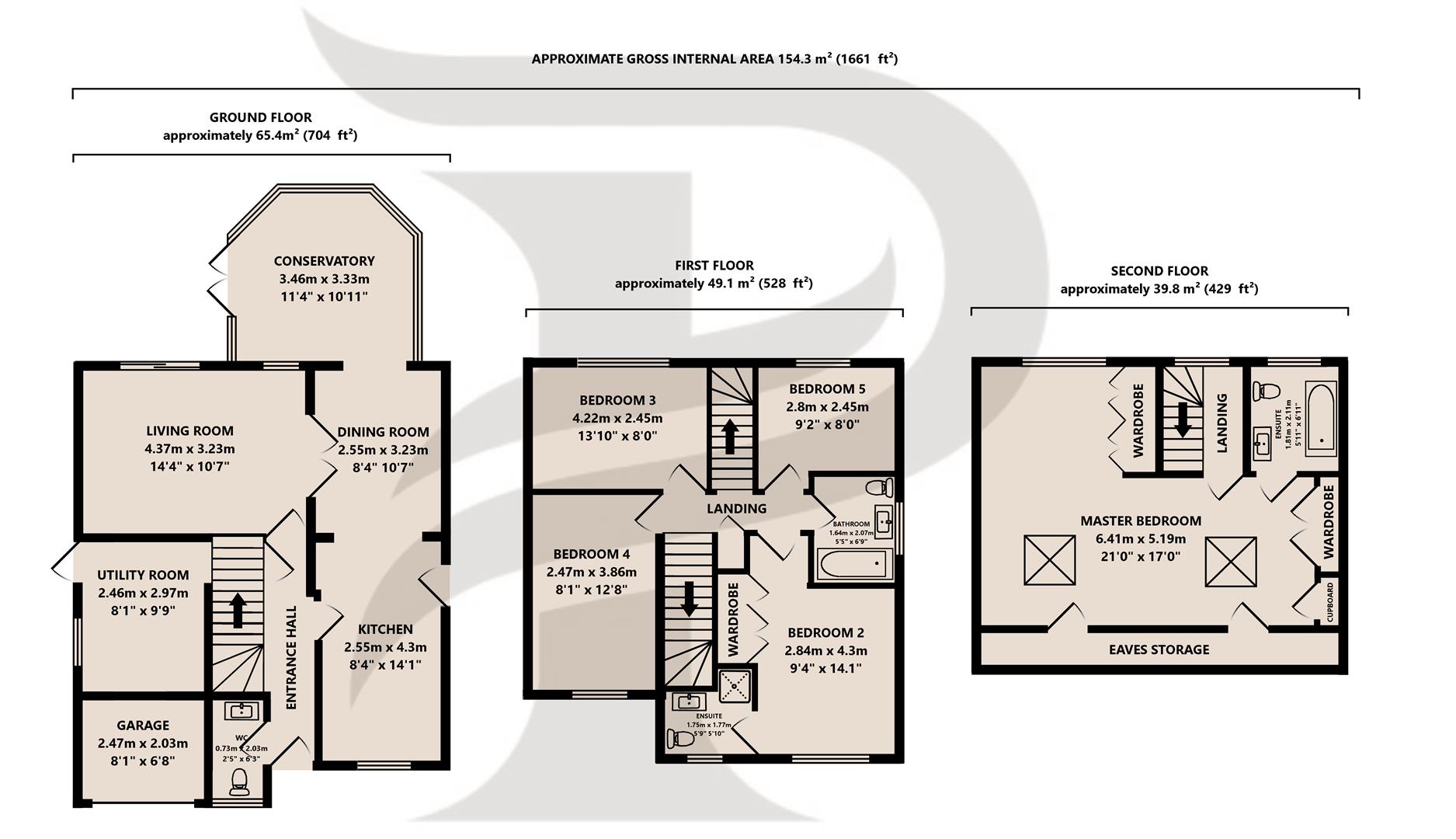
• 5 bedroom detached house
• Two Ensuite bedrooms
• Conservatory and utility room
• Garage and private driveway
• No onward chain
• Great transport links
• Quiet and popular residential area
• Walking distance to Maiden Erlegh Lakes
• Excellent local primary and secondary schools
• Close to Asda Complex, Loddon Valley Leisure Centre, and Lower Earley Library
Nestled in the desirable area of Swepstone Close, Lower Earley, this impressive detached house offers a perfect blend of space and comfort. With five generously sized bedrooms and three well-appointed bathrooms, this extended property spans an impressive 1,658 square feet, the property boasts five spacious bedrooms, making it an ideal family home.
Built in 1980, the house boasts a classic design while providing modern conveniences. The spacious reception room is perfect for entertaining guests or enjoying family time, while the ample bedrooms ensure everyone has their own private retreat. The property is chain-free, allowing for a smooth and hassle-free purchase.
Convenience is at your doorstep, with the Asda Complex, Loddon Valley Leisure Centre, and Lower Earley library all within close proximity. Families will appreciate the excellent local primary and secondary schools, which fall within a sought-after catchment area. For those who commute, the property offers easy access to major roadways including the A329M, M4, and A33 to Basingstoke, all within a mere two miles. Additionally, rail links at Earley provide further transport options for those travelling further afield.
The property features a garage and a generous private driveway, additional on-street parking is also available for guests. The location is particularly appealing, as it is within walking distance to the picturesque Maiden Erlegh Lakes, perfect for leisurely strolls or family outings.
This delightful home is perfect for those seeking a spacious and well-located property in a vibrant community. Don’t miss the opportunity to make this charming house your new home. Contact Perfect Pillars today to arrange a viewing!
bottom of page























